Jović gradnja
Izaberite Vaš stan
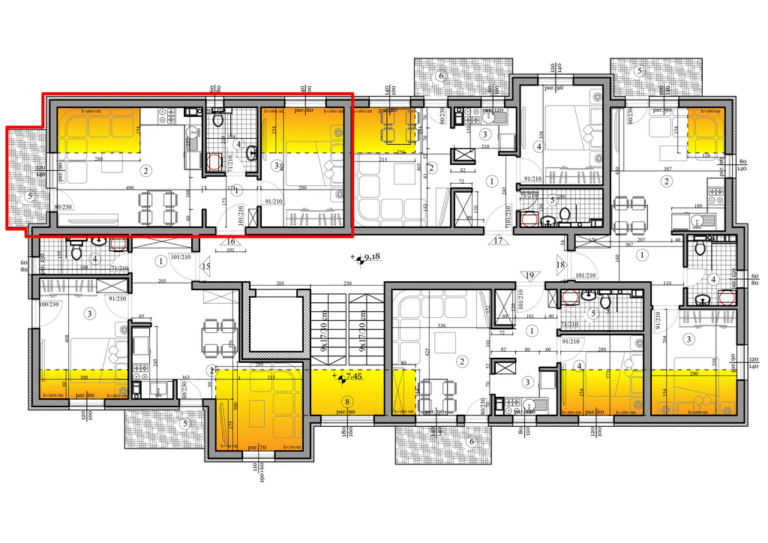
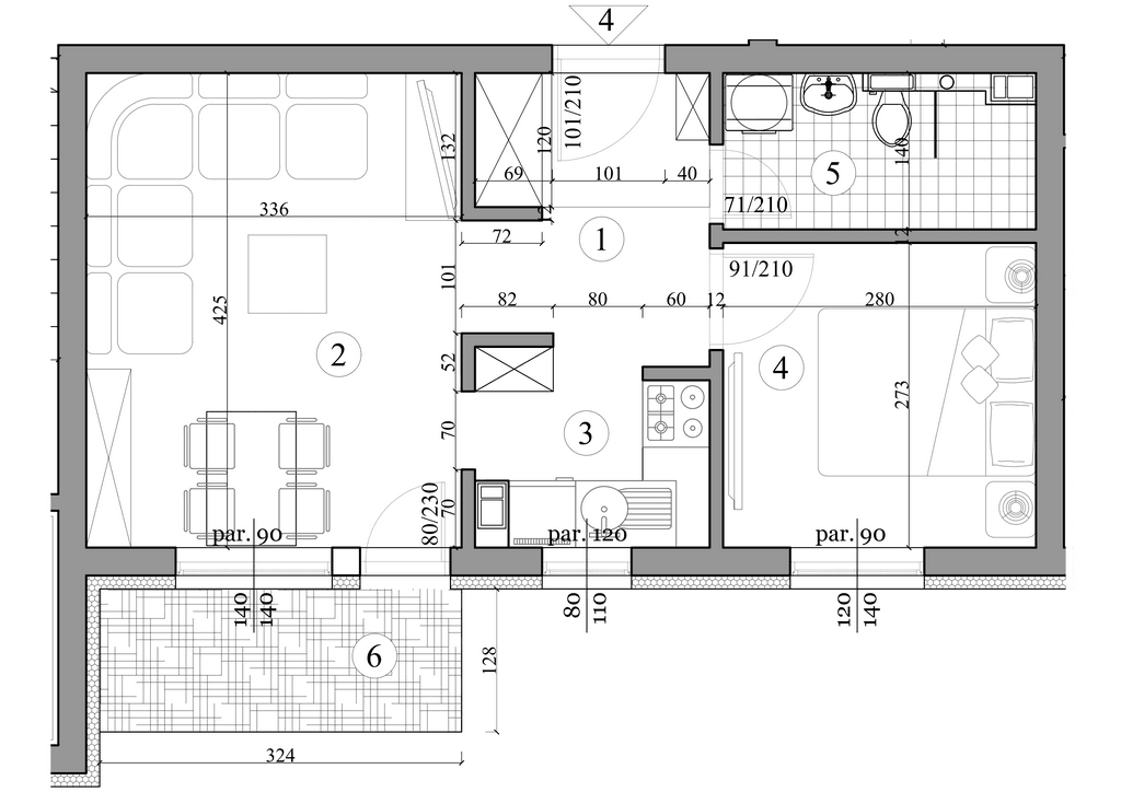
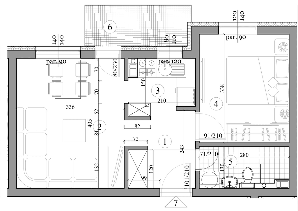
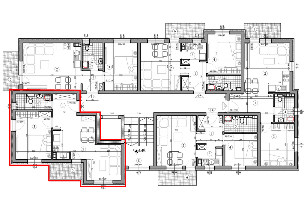
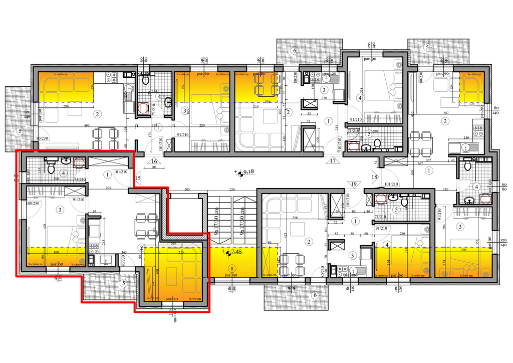
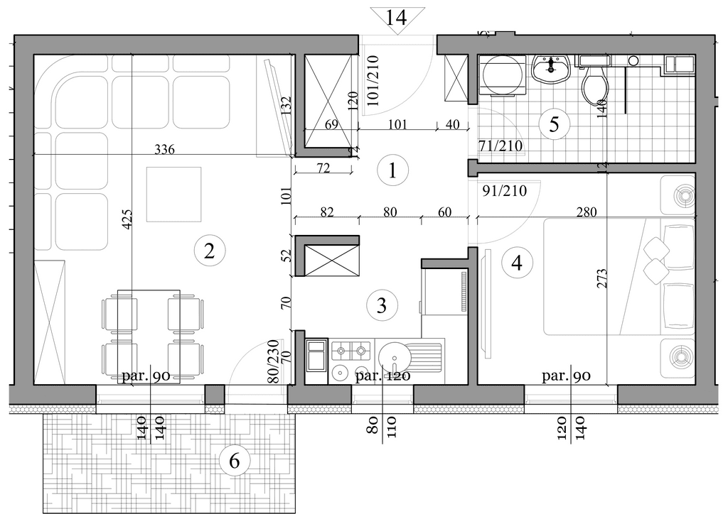
Stan 1 – Prizemlje – 78,2 m²
Stan 1 u prizemlju predstavlja idealan spoj komfora, funkcionalnosti i savršene lokacije u Sokobanji, u ulici Vojvode Putnika. Prostrani dnevni boravak, dve spavaće sobe, odvojena kuhinja sa trpezarijom i terasa pružaju potpuni komfor za svakodnevni život, ali i odličnu priliku za izdavanje ili odmor.
Površina: 78,2 m²
Lokacija: prizemlje
Odlična investicija za porodično stanovanje ili izdavanje
Detaljna struktura stana:
| Prostorija | Površina (m²) |
|---|---|
| Ulazni deo | 9.60 |
| Dnevna soba | 19.20 |
Kuhinja sa trpezarijom | 12.73 |
| Toalet | 3.91 |
| Spavaća soba 1 | 18.36 |
| Kupatilo | 3.65 |
| Spavaća soba 2 | 11.34 |
| Terasa | 1.77 |
Ukupna korisna površina | 78.20 |
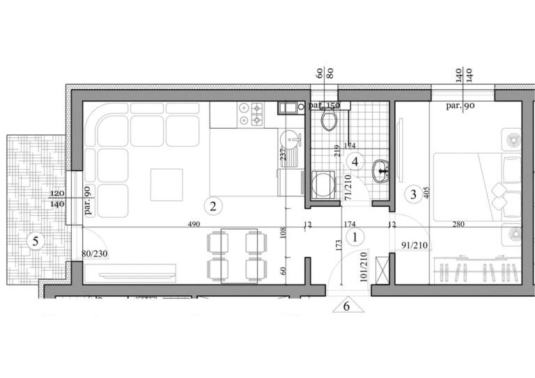
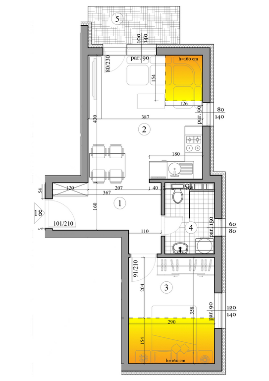
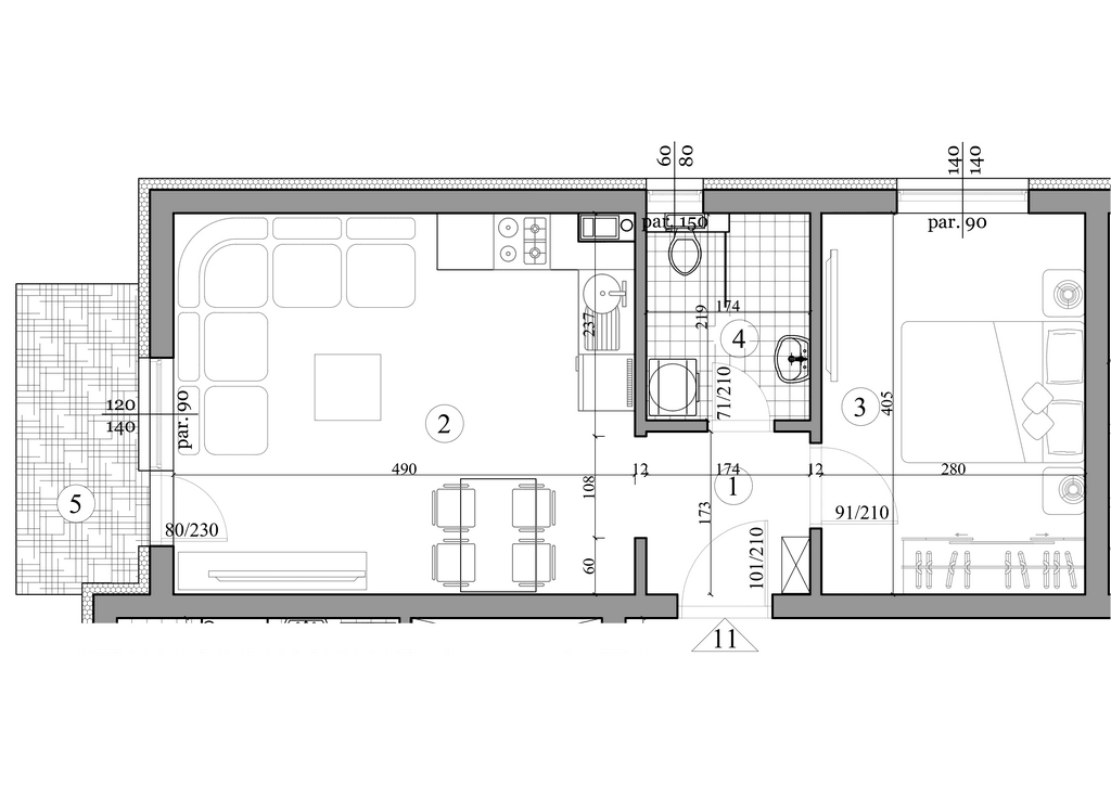
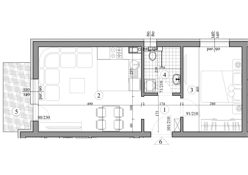
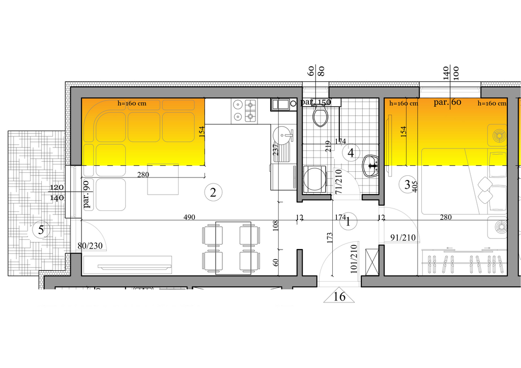
Stan 2 – Prizemlje – 37,73 m² PRODATO
Stan broj 2 nalazi se u modernoj novogradnji u naselju Carina u Sokobanji, u ulici Vojvode Putnika. Ovaj funkcionalan stan površine 37,73 m² idealan je za odmor, život ili izdavanje. Poseduje dnevni boravak sa trpezarijom, kuhinju, spavaću sobu, kupatilo i terasu. Uz maksimalno iskorišćen prostor, kvalitetnu izradu i odličnu lokaciju, predstavlja savršen izbor za sve koji traže sigurnu investiciju i uživanje u prirodnom okruženju.
Površina: 37,73 m²
Lokacija: prizemlje
Odlična investicija za porodično stanovanje ili izdavanje
Detaljna struktura stana:
| Prostorija | Površina (m²) |
|---|---|
| Ulazni deo | 4.92 |
Dnevna soba sa trpezarijom | 13.61 |
| Kuhinja | 3.28 |
| Spavaća soba | 9.46 |
| Kupatilo | 3.34 |
| Terasa | 4.16 |
Ukupna korisna površina | 37.73 |
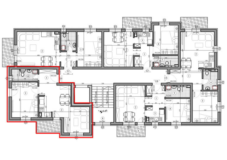
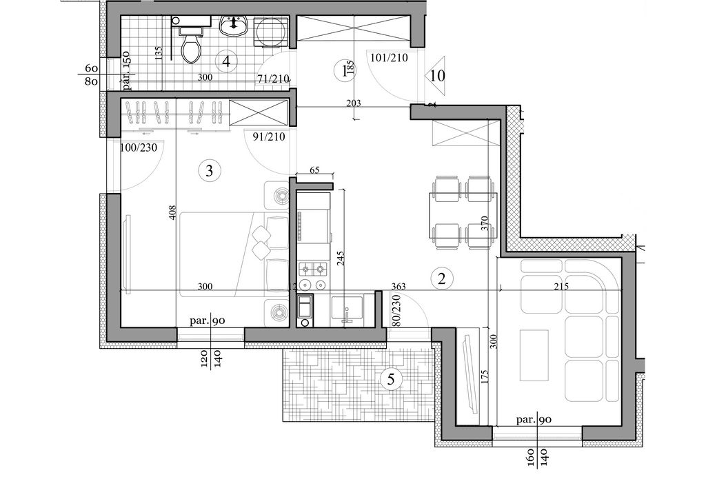
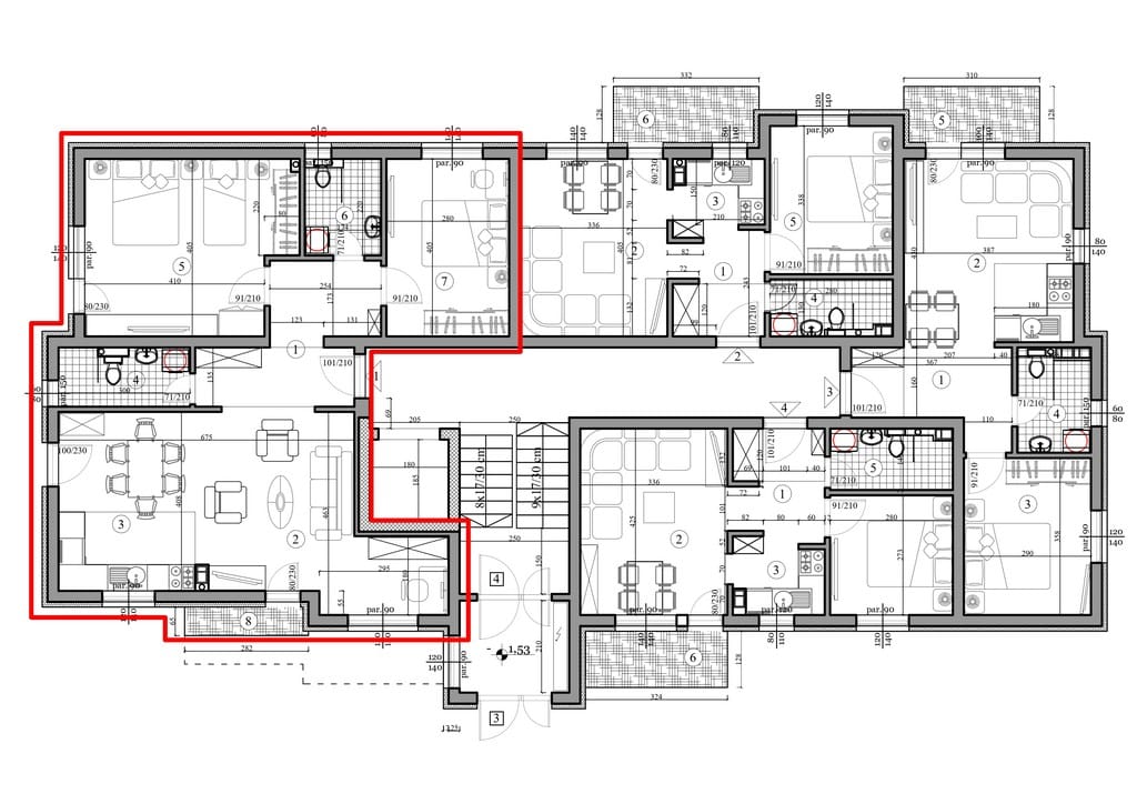
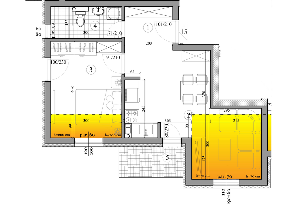
Stan 3 – Prizemlje – 39.93 m²
Stan 3 nalazi se u modernoj novogradnji u naselju Carina u Sokobanji, u ulici Vojvode Putnika. Ovaj kvalitetno projektovan stan površine 39,93 m² idealan je za život, odmor ili izdavanje.
Sastoji se od prostranog dnevnog boravka sa trpezarijom i kuhinjom, udobne spavaće sobe, funkcionalnog kupatila i terase.
Zahvaljujući pametnom rasporedu prostorija, kvalitetnoj izradi i lokaciji u srcu banjskog turizma, stan je savršen izbor za sve koji žele sigurnu i dugoročnu investiciju.
✅ Površina: 39,93 m²
✅ Lokacija: prizemlje
✅ Idealno za stanovanje, odmor ili izdavanje
Detaljna struktura stana:
| Prostorija | Površina (m²) |
|---|---|
| Ulazni deo | 6.75 |
Dnevna soba sa trpezarijom i kuhinjom | 16.42 |
| Spavaća soba | 10.38 |
| Kupatilo | 3.61 |
| Terasa | 3.88 |
Ukupna korisna površina | 39.93 |
Stan 4 – Prizemlje – 37.48 m²
Stan broj 4 nalazi se u prizemlju moderne zgrade u naselju Carina u Sokobanji, u ulici Vojvode Putnika.
Ovaj stan površine 37,48 m² pruža savršen spoj funkcionalnosti i udobnosti, idealan je za porodični život, izdavanje ili boravak tokom odmora.
Sadrži dnevnu sobu sa trpezarijom, kuhinju, spavaću sobu, kupatilo i terasu.
Ušuškan u mirnom kraju Sokobanje, ali blizu svih bitnih sadržaja, predstavlja odličnu priliku za sigurnu investiciju.
✅ Površina: 37,48 m²
✅ Lokacija: prizemlje
✅ Pogodno za život, izdavanje ili odmor
Detaljna struktura stana:
| Prostorija | Površina (m²) |
|---|---|
| Ulazni deo | 5.36 |
Dnevna soba sa trpezarijom | 14.28 |
| Kuhinja | 3.46 |
| Spavaća soba | 7.64 |
| Kupatilo | 3.62 |
| Terasa | 4.15 |
Ukupna korisna površina | 37.48 |
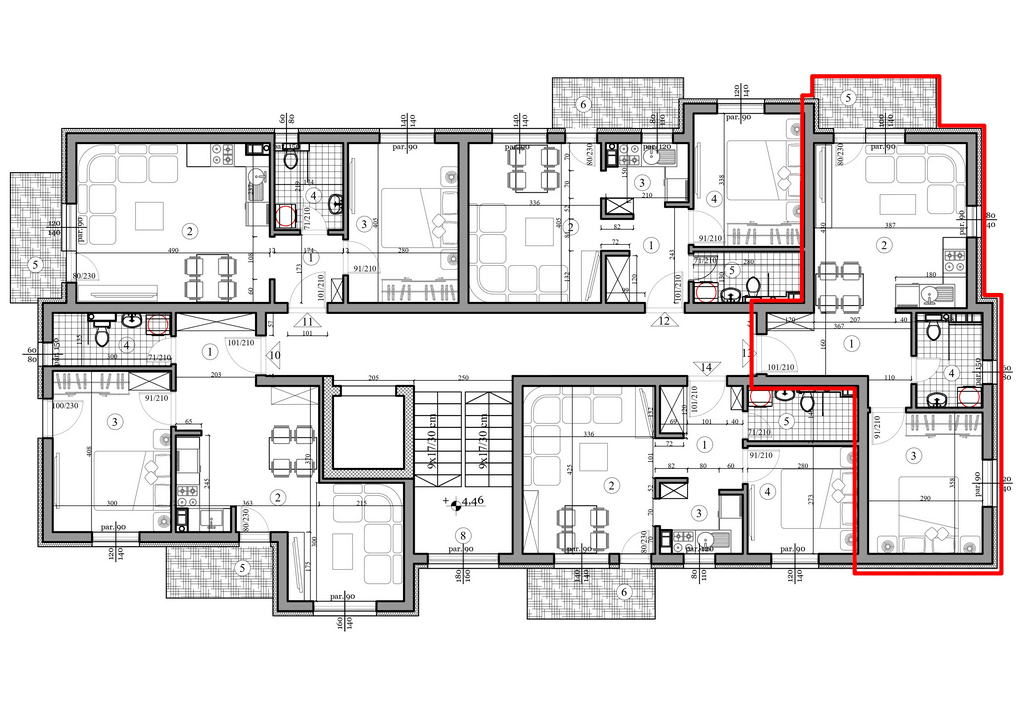
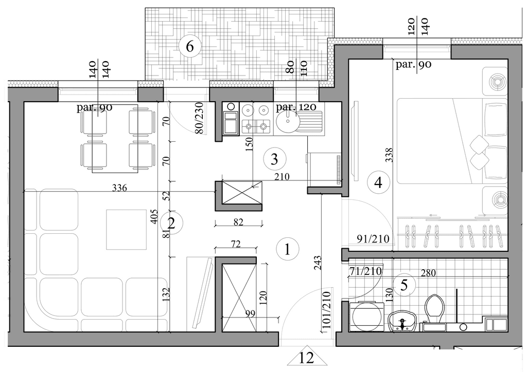
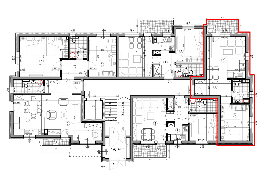
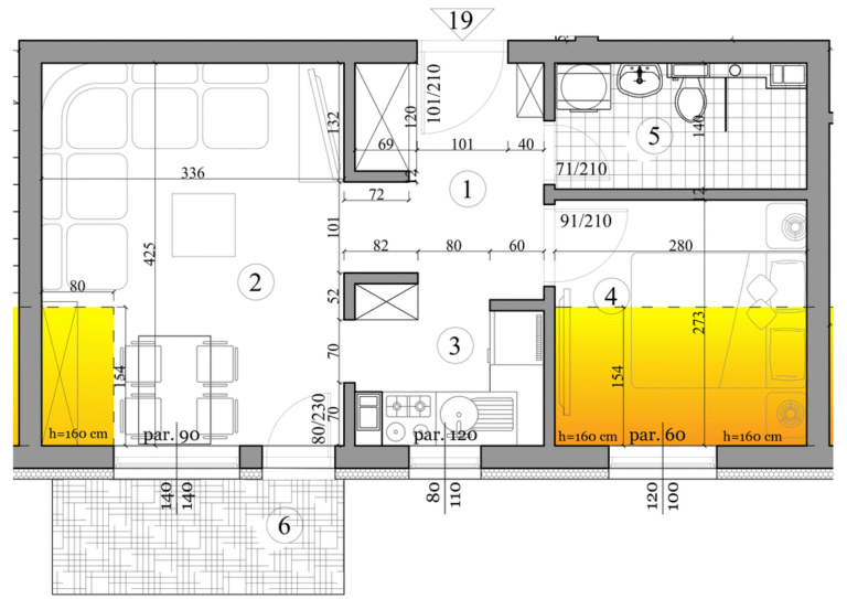
Stan 5 – Prvi sprat – 42,14 m²
Stan 5 se nalazi na prvom spratu moderne novogradnje u Sokobanji, u mirnoj i atraktivnoj ulici Vojvode Putnika.
Sa površinom od 43,14 m², stan ima odličan raspored: dnevnu sobu sa trpezarijom i kuhinjom, prostranu spavaću sobu, kupatilo i terasu.
Idealan je za porodični život, ali i kao investicija za izdavanje u turističkoj sezoni.
✅ Površina: 43,14 m²
✅ Sprat: prvi
✅ Pogodno za život, odmor i izdavanje
Detaljna struktura stana:
| Prostorija | Površina (m²) |
|---|---|
| Ulazni deo | 3.76 |
Dnevna soba sa trpezarijom i kuhinjom | 20.95 |
| Spavaća soba | 12.24 |
| Kupatilo | 3.91 |
| Terasa | 3.51 |
Ukupna korisna površina | 43.14 |
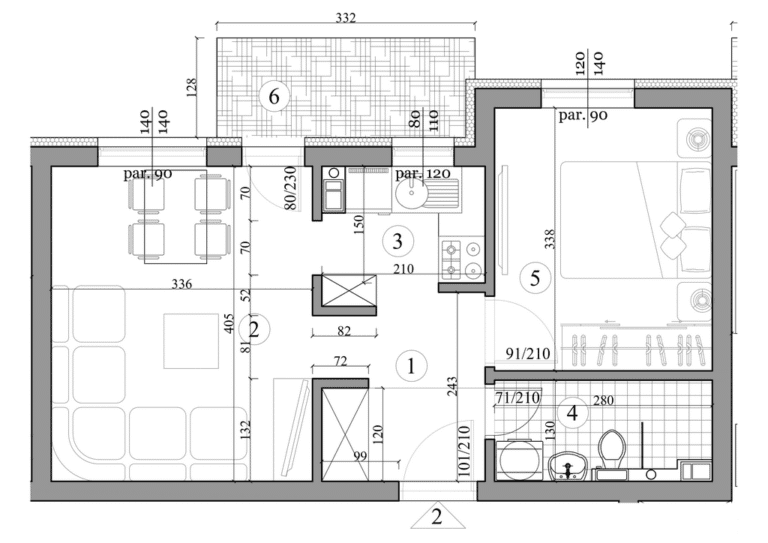
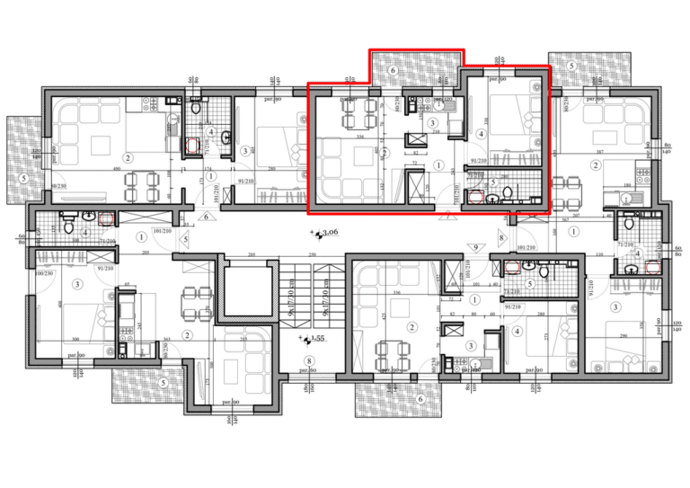
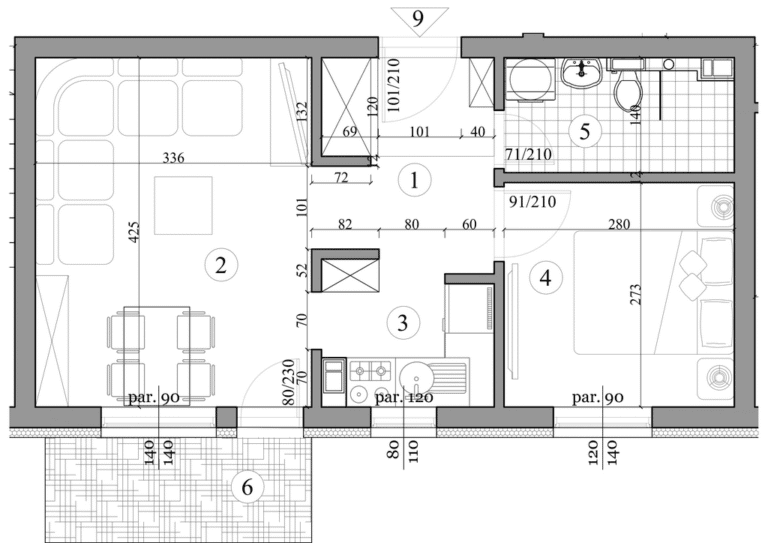
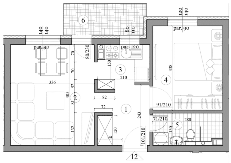
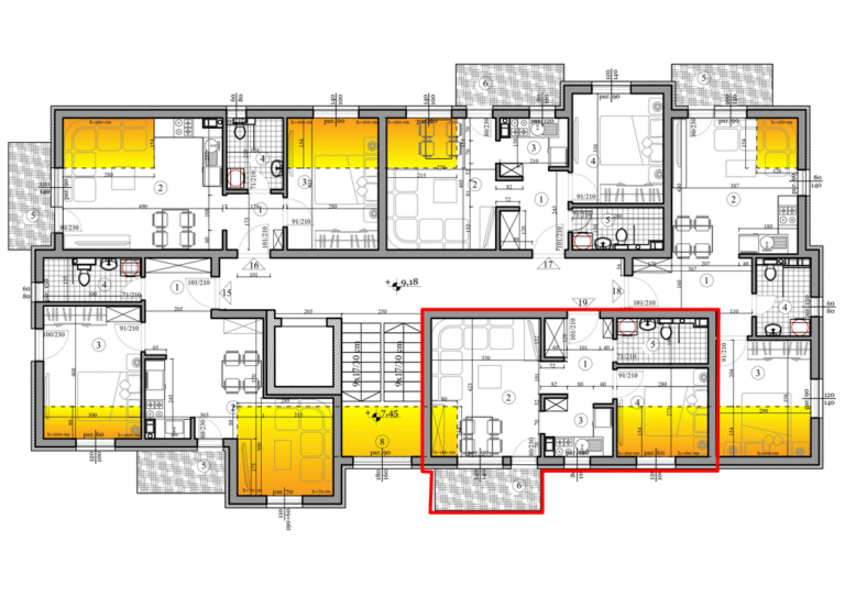
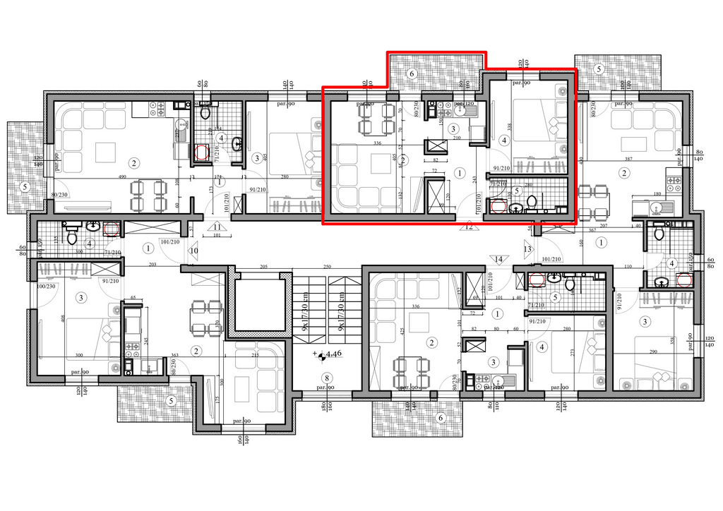
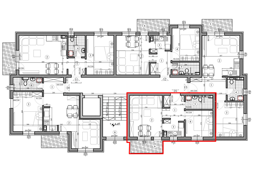
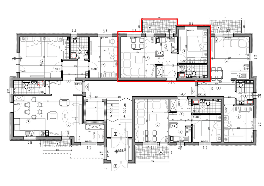
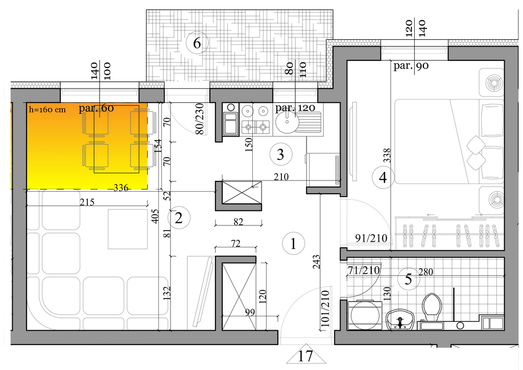
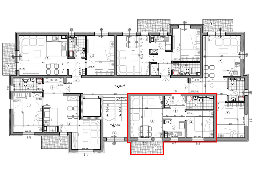
Stan 6 – Prvi sprat – 41,03 m²
Stan broj 6 nalazi se na prvom spratu, površine 41,03 m².
Sastoji se od dnevne sobe sa kuhinjom i trpezarijom, spavaće sobe, kupatila i terase.
Zahvaljujući funkcionalnom rasporedu i lokaciji u blizini centra Sokobanje, stan je idealan za život ili izdavanje.
Površina: 41,03 m²
Sprat: prvi
Udoban, funkcionalan, odlična lokacija
Detaljna struktura stana:
| Prostorija | Površina (m²) |
|---|---|
| Ulazni deo | 3.01 |
Dnevna soba sa
trpezarijom
i kuhinjom | 19.84 |
| Spavaća soba | 11.34 |
| Kupatilo | 3.65 |
| Terasa | 4.31 |
Ukupna korisna
površina | 41.03 |
Stan 7 – Prvi sprat – 37,73 m² PRODATO
Na prvom spratu zgrade nalazi se stan broj 7, površine 37,73 m².
Kompaktan i praktičan, stan nudi optimalan raspored – dnevni boravak sa trpezarijom i kuhinjom, spavaću sobu, kupatilo i terasu.
Odličan za stanovanje, izdavanje ili kraće boravke u Sokobanji.
✅ Površina: 37,73 m²
✅ Sprat: prvi
✅ Idealno za odmor i izdavanje
Detaljna struktura stana:
| Prostorija | Površina (m²) |
|---|---|
| Ulazni deo | 4.92 |
Dnevna soba
sa trpezarijom | 13.61 |
| Kuhinja | 3.28 |
| Spavaća soba | 9.46 |
| Kupatilo | 3.34 |
| Terasa | 4.16 |
Ukupna korisna
površina | 37.73 |
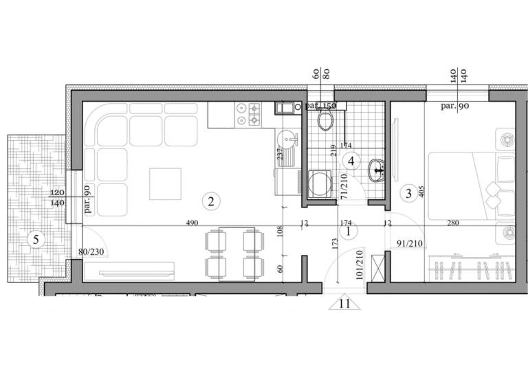
Stan 9 – Prvi sprat – 37,48 m² PRODATO
Stan broj 9 se nalazi na prvom spratu. Površina od 37,48 m² je maksimalno iskorišćena – odvojen dnevni boravak, trpezarija, kuhinja, komforna spavaća soba, kupatilo i terasa.
Odlična opcija za mlade parove, penzionere ili kao turistički apartman.
✅ Površina: 37,48 m²
✅ Sprat: prvi
✅ Ušuškana terasa, odličan raspored
Detaljna struktura stana:
| Prostorija | Površina (m²) |
|---|---|
| Ulazni deo | 5.36 |
Dnevna soba sa trpezarijom | 14.28 |
| Kuhinja | 3.46 |
| Spavaća soba | 7.64 |
| Kupatilo | 3.62 |
| Terasa | 4.15 |
Ukupna korisna površina | 37.48 |
Stan 10 – Drugi sprat – 43,14 m²
Na drugom spratu objekta nalazi se stan broj 10, površine 43,14 m².
Savršeno organizovan prostor – otvoreni dnevni boravak sa kuhinjom i trpezarijom, odvojena spavaća soba, moderno kupatilo i funkcionalna terasa.
Stan je idealan za kupce koji žele visinu, svetlost i udobnost.
✅ Površina: 43,14 m²
✅ Sprat: drugi
✅ Moderno, svetlo, komforno
Detaljna struktura stana:
| Prostorija | Površina (m²) |
|---|---|
| Ulazni deo | 3.76 |
Dnevna soba sa
trpezarijom i
kuhinjom | 20.95 |
| Spavaća soba | 12.24 |
| Kupatilo | 3.91 |
| Terasa | 3.51 |
Ukupna korisna
površina | 43.14 |
Stan 11 – Drugi sprat – 41,03 m²
Stan 11 – komforan jednosoban stan idealan za odmor, život ili izdavanje u Sokobanji.
Na drugom spratu moderne zgrade u ulici Vojvode Putnika, nalazi se funkcionalno organizovan stan koji kombinuje udobnost i praktičnost. Otvoren koncept dnevne sobe sa trpezarijom i kuhinjom, izdvojena spavaća soba i terasa pružaju optimalan prostor za svakodnevni život ili boravak na odmoru.
Lokacija, kvaliteta gradnje i struktura stana čine ga odličnom investicijom u rastućem turističkom mestu poput Sokobanje.
✅ Idealno za parove, porodice ili izdavanje
✅ U blizini banje, parka, i centra Sokobanje
✅ Moderna novogradnja u mirnom kraju
Detaljna struktura stana:
| Prostorija | Površina (m²) |
|---|---|
| Ulazni deo | 3.01 |
Dnevna soba sa trpezarijom i kuhinjom | 19.84 |
| Spavaća soba | 11.34 |
| Kupatilo | 3.65 |
| Terasa | 4.31 |
Ukupna korisna površina | 41.03 |
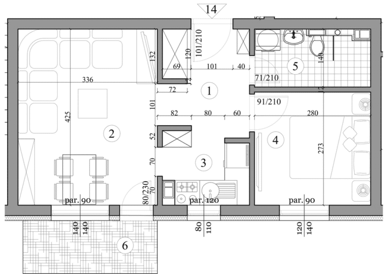
Stan 12 – Drugi sprat – 37,73 m²
✅ Svetla dnevna zona
✅ Odlična terasa
✅ Pametno iskorišćen prostor
Detaljna struktura stana:
| Prostorija | Površina (m²) |
|---|---|
| Ulazni deo | 4.92 |
Dnevna soba
sa trpezarijom | 13.61 |
| Kuhinja | 3.28 |
| Spavaća soba | 9.46 |
| Kupatilo | 3.34 |
| Terasa | 4.16 |
Ukupna korisna
površina | 37.73 |
Stan 13 – Drugi sprat – 39,93 m²
Stan 13 je idealan za parove ili pojedince koji traže balans funkcionalnosti i komfora u srcu Sokobanje. Dnevni boravak sa trpezarijom pruža otvoren prostor, dok terasa nudi dodatni ugođaj.
✅ Optimizovan raspored
✅ Idealno za dvoje
✅ Pogodno za izdavanje
Detaljna struktura stana:
| Prostorija | Površina (m²) |
|---|---|
| Ulazni deo | 6.75 |
Dnevna soba
sa trpezarijom
i kuhinjom | 16.42 |
| Spavaća soba | 10.38 |
| Kupatilo | 3.61 |
| Terasa | 3.88 |
Ukupna korisna
površina | 39.93 |
Stan 14 – Drugi sprat – 37,48 m²
Stan 14 u Sokobanji nudi idealnu kombinaciju mira i praktičnosti – savršen za one koji žele manji stan sa svim potrebnim sadržajima.
✅ Ekonomično rešenje
✅ Kompaktna organizacija
✅ Moderna kuhinja
Detaljna struktura stana:
| Prostorija | Površina (m²) |
|---|---|
| Ulazni deo | 5.36 |
Dnevna soba
sa trpezarijom | 14.28 |
| Kuhinja | 3.46 |
| Spavaća soba | 7.64 |
| Kupatilo | 3.62 |
| Terasa | 4.15 |
Ukupna korisna
površina | 37.48 |
Stan 15 – Potkrovlje – 43,14 m²
Stan broj 15, smešten u potkrovlju zgrade u Sokobanji, nudi savršen spoj funkcionalnosti i udobnosti. Otvoreni koncept dnevnog boravka sa kuhinjom pruža maksimalnu iskoristivost prostora, dok terasa donosi dodatni kvalitet stanovanja. Idealna opcija za parove, individualce ili kao investicija za izdavanje.
✅ Otvoren i svetao prostor
✅ Idealan za uživanje i rad od kuće
✅ Odlična investicija u turističkoj zoni
Detaljna struktura stana:
| Prostorija | Površina (m²) |
|---|---|
| Ulazni deo | 3.76 |
Dnevna soba sa
trpezarijom
i kuhinjom | 20.95 |
| Spavaća soba | 12.24 |
| Kupatilo | 3.91 |
| Terasa | 3.51 |
Ukupna korisna
površina | 43.14 |
Stan 16 – Potkrovlje – 41,03 m²
Stan broj 16 u potkrovlju savršeno kombinuje funkcionalnost i udobnost, sa otvorenim dnevnim boravkom i kuhinjom, spavaćom sobom i terasom za uživanje u pogledu. Lokacija u mirnom delu Sokobanje čini ga odličnim izborom za život ili izdavanje.
✅ Praktičan raspored
✅ Svetao dnevni prostor
✅ Odlična lokacija
Detaljna struktura stana:
| Prostorija | Površina (m²) |
|---|---|
| Ulazni deo | 3.01 |
Dnevna soba sa
trpezarijom i
kuhinjom | 19.84 |
| Spavaća soba | 11.34 |
| Kupatilo | 3.65 |
| Terasa | 4.31 |
Ukupna korisna
površina | 41.03 |
Stan 17 – Potkrovlje – 37,73 m² PRODATO
Stan broj 17 nudi optimalan raspored za maksimalnu udobnost. Kombinacija dnevne zone, odvojene kuhinje i prostrane terase stvara idealan prostor za svakodnevni život ili kratkoročno izdavanje.
✅ Efikasno iskorišćen prostor
✅ Idealno za parove
✅ Terasa sa pogledom
Detaljna struktura stana:
| Prostorija | Površina (m²) |
|---|---|
| Ulazni deo | 4.92 |
Dnevna soba
sa trpezarijom | 13.61 |
| Kuhinja | 3.28 |
| Spavaća soba | 9.46 |
| Kupatilo | 3.34 |
| Terasa | 4.16 |
Ukupna korisna
površina | 37.73 |
Stan 18 – Potkrovlje – 39,93 m²
Stan 18 je kompaktan i funkcionalan prostor idealan za boravak u Sokobanji. Dnevna soba sa trpezarijom i terasa pružaju dovoljno prostora za uživanje, dok organizovan raspored omogućava udobno stanovanje.
✅ Praktičan raspored
✅ Idealno za turistički zakup
✅ Svetao ambijent
Detaljna struktura stana:
| Prostorija | Površina (m²) |
|---|---|
| Ulazni deo | 6.75 |
Dnevna soba
sa trpezarijom | 16.42 |
| Spavaća soba | 10.38 |
| Kupatilo | 3.61 |
| Terasa | 3.88 |
Ukupna korisna
površina | 39.93 |
Stan 19 – Potkrovlje – 37,48 m²
Stan 19 predstavlja funkcionalan dom u potkrovlju idealan za one koji žele mir i privatnost. Sa dnevnom sobom, odvojenom kuhinjom i terasom, pruža ugodan boravak tokom cele godine.
✅ Odlična prostorna organizacija
✅ Terasa sa pogledom
✅ Idealno za parove
Detaljna struktura stana:
| Prostorija | Površina (m²) |
|---|---|
| Ulazni deo | 5.36 |
Dnevna soba
sa trpezarijom | 14.28 |
| Kuhinja | 3.46 |
| Spavaća soba | 7.64 |
| Kupatilo | 3.62 |
| Terasa | 4.15 |
Ukupna korisna
površina | 37.48 |
„Možete sanjati, stvarati, dizajnirati i napraviti najdivnije mesto na svetu. Ali to zahteva ljude koji će taj san da ostvare.”
– Walt Disney







































































